
5155 Douglas AVE Banning, CA 92220
3 Beds
3 Baths
1,957 SqFt
UPDATED:
Key Details
Property Type Single Family Home
Sub Type Single Family Residence
Listing Status Active
Purchase Type For Sale
Square Footage 1,957 sqft
Price per Sqft $25
Subdivision Ciena
MLS Listing ID IV25265981
Bedrooms 3
Full Baths 2
Half Baths 1
HOA Fees $202/mo
HOA Y/N Yes
Property Sub-Type Single Family Residence
Property Description
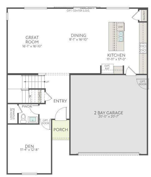
The true showpiece of this home is the expansive, thoughtfully designed kitchen featuring a large island perfect for gatherings. It flows seamlessly into the dining area and great room, which are brightened by abundant natural light from multiple windows and a sliding door that leads outdoors.
Don't miss your chance to own this exceptional home—scheduled for completion in March 2026!
Location
State CA
County Riverside
Area 263 - Banning/Beaumont/Cherry Valley
Interior
Interior Features All Bedrooms Up
Cooling Central Air
Fireplaces Type None
Fireplace No
Laundry Inside, Laundry Room
Exterior
Garage Spaces 2.0
Garage Description 2.0
Pool Association
Community Features Suburban
Amenities Available Dog Park, Barbecue, Picnic Area, Playground, Pool, Spa/Hot Tub, Trail(s)
View Y/N No
View None
Total Parking Spaces 2
Private Pool No
Building
Lot Description Drip Irrigation/Bubblers, Sprinklers In Front
Dwelling Type House
Story 2
Entry Level Two
Sewer Public Sewer
Water Public
Level or Stories Two
New Construction Yes
Schools
School District Beaumont
Others
HOA Name Atwell MasterMaintenance community
Senior Community No
Tax ID 408741011
Acceptable Financing Submit
Listing Terms Submit
Special Listing Condition Standard






